TECEprofil stelaż WC ze spłuczką Uni z przyłączem do odciągu zapachów (DN 70), wysokość montażowa 1120 mm
- Stelaż WC TECEprofil 9300303 (1120 mm) z możliwością montażu pochłaniacza zapachów DN70. Komplet ze spłuczką Uni. Kup online lub stacjonarnie we Wrocławiu
Produkty subskrypcyjne w twoim koszyku
Ustaw jedną częstotliwość dostaw dla wszystkich produktów subskrypcyjnych z twojego koszyka co:
Produkty subskrypcyjne w twoim koszyku
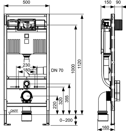
Stelaż podtynkowy TECEprofil 9300303 – 1120 mm z przygotowaniem do montażu pochłaniacza zapachów
TECEprofil 9300303 to nowoczesny stelaż podtynkowy do WC o wysokości montażowej 1120 mm, który wyróżnia się możliwością podłączenia pochłaniacza zapachów (DN70). Dzięki temu rozwiązaniu nie tylko zyskujesz solidną konstrukcję montażową, ale również poprawiasz komfort użytkowania toalety w domu, mieszkaniu lub obiekcie komercyjnym. Produkt dostępny od ręki w naszej hurtowni hydraulicznej we Wrocławiu.
Wysokość montażowa 1120 mm – uniwersalny standard
Dzięki klasycznej wysokości 1120 mm stelaż ten pasuje do większości łazienek i toalet – zarówno w zabudowie jedno- jak i wielorodzinnej. Montaż w systemach lekkich (g-k) jest szybki, stabilny i intuicyjny. Wysokość ta gwarantuje optymalne umieszczenie miski WC i łatwy dostęp do przycisku spłukującego.
Unikalna cecha: przygotowanie pod pochłaniacz zapachów DN70
Model TECEprofil 9300303 wyróżnia się wstępnym przygotowaniem do montażu pochłaniacza zapachów. Oznacza to, że możesz łatwo zainstalować system, który odprowadza nieprzyjemne zapachy bezpośrednio z miski WC – jeszcze przed ich wydostaniem się do łazienki. To rozwiązanie jest szczególnie doceniane w nowoczesnym budownictwie oraz przez klientów poszukujących wysokiego standardu wyposażenia.
Spłuczka TECE Uni – oszczędność i niezawodność
W komplecie znajduje się sprawdzona spłuczka TECE Uni o pojemności 10 litrów z izolacją przeciwroszeniową. Fabrycznie ustawiona konfiguracja 6/3 l może zostać łatwo zmodyfikowana do 4,5/3 l lub 7,5/3 l. Oszczędne spłukiwanie oraz trwałość elementów czynią tę spłuczkę idealnym rozwiązaniem do codziennego, wieloletniego użytkowania.
Najważniejsze cechy produktu:
- ✅ Wysokość montażowa: 1120 mm
- ✅ Możliwość instalacji pochłaniacza zapachów (DN70)
- ✅ Kompatybilność z większością misek WC
- ✅ Spłuczka Uni z regulacją wypłukiwania i izolacją
- ✅ Stabilna, stalowa konstrukcja odporna na korozję
- ✅ Gotowość do lekkiej zabudowy (płyta GK itp.)
Produkt wybierany przez instalatorów z Wrocławia
Model TECEprofil 9300303 cieszy się dużym uznaniem wśród wykonawców na Dolnym Śląsku. We Wrocławiu coraz więcej projektów łazienkowych zakłada montaż pochłaniacza zapachów, co czyni ten stelaż wyjątkowo funkcjonalnym wyborem. Oferujemy atrakcyjne warunki zakupu dla firm instalatorskich oraz odbiorców indywidualnych w hurtowni domwroc24.pl.
Specyfikacja techniczna:
- Wysokość konstrukcji: 1120 mm
- Szerokość: 500 mm
- Głębokość zabudowy: min. 160 mm
- Rozstaw śrub: 180 lub 230 mm
- Odpływ: poziomy Ø90 mm z redukcją Ø110 mm
- Przygotowanie pod pochłaniacz zapachów: DN70
- Przyłącze wody: G½", od lewej, prawej lub z tyłu
- Współpraca z przyciskami: TECEloop, TECEsquare, TECEnow
Estetyka, trwałość, wygoda
Dzięki zgodności z systemem TECE, stelaż umożliwia wybór szerokiej gamy przycisków spłukujących – od klasycznych po designerskie, wykonane z metalu lub szkła. Dodatkowo, konstrukcja stalowa z powłoką antykorozyjną zapewnia długowieczność i wytrzymałość całego systemu.
Ekologiczne rozwiązanie dla nowoczesnych łazienek
Podwójne spłukiwanie i możliwość regulacji ilości zużywanej wody sprawiają, że TECEprofil 9300303 spełnia oczekiwania klientów dbających o środowisko i rachunki. W połączeniu z systemem neutralizacji zapachów tworzy komfortową i higieniczną przestrzeń w każdej łazience.
Gdzie kupić we Wrocławiu?
Produkt dostępny od ręki w naszej hurtowni we Wrocławiu – domwroc24.pl. Zapewniamy szybką wysyłkę, odbiór osobisty i wsparcie techniczne. Zapraszamy instalatorów i inwestorów z regionu.
Dlaczego warto?
- 🔧 Gotowość do montażu pochłaniacza zapachów DN70
- 💧 Oszczędna i trwała spłuczka TECE Uni
- 🏗️ Standardowa wysokość 1120 mm
- 📦 Kompletne wyposażenie montażowe w zestawie
- 📍 Kup stacjonarnie lub online we Wrocławiu
Wybierz stelaż TECEprofil 9300303 – nowoczesne rozwiązanie z funkcją pochłaniania zapachów, gotowe do instalacji w każdej łazience. Odbiór osobisty możliwy we Wrocławiu, ekspresowa wysyłka dostępna w całej Polsce.
Gwarancja Geberit - 10 lat







